楼盘:恒基·翔龙江畔
面积:132 风格:
设计施工单位: 重庆 ANBO.COM设计工程有限公司
风格说明:
轻法式风格融入了当下的许多时尚因素,比如精致的重复印花图案、简约的色彩混搭轻法式风格十分注重装饰性,更多情况下是简约化了家居的外形,而采用手绘、印花、刺绣等手法,在简约的家具表面上做文章,混搭出不同的时尚风味。
各种雕花的图案,还常常在雕花上加以描金,在家具的表面上贴金箔,在家具腿部描上金色细线,务求让整个空间金光闪耀,璀璨动人。轻法式风格也钟情于“金”元素,它深知这种经典元素的精致质感,但却不沉迷,主张不浮夸、不炫耀的低调时尚。
图集:
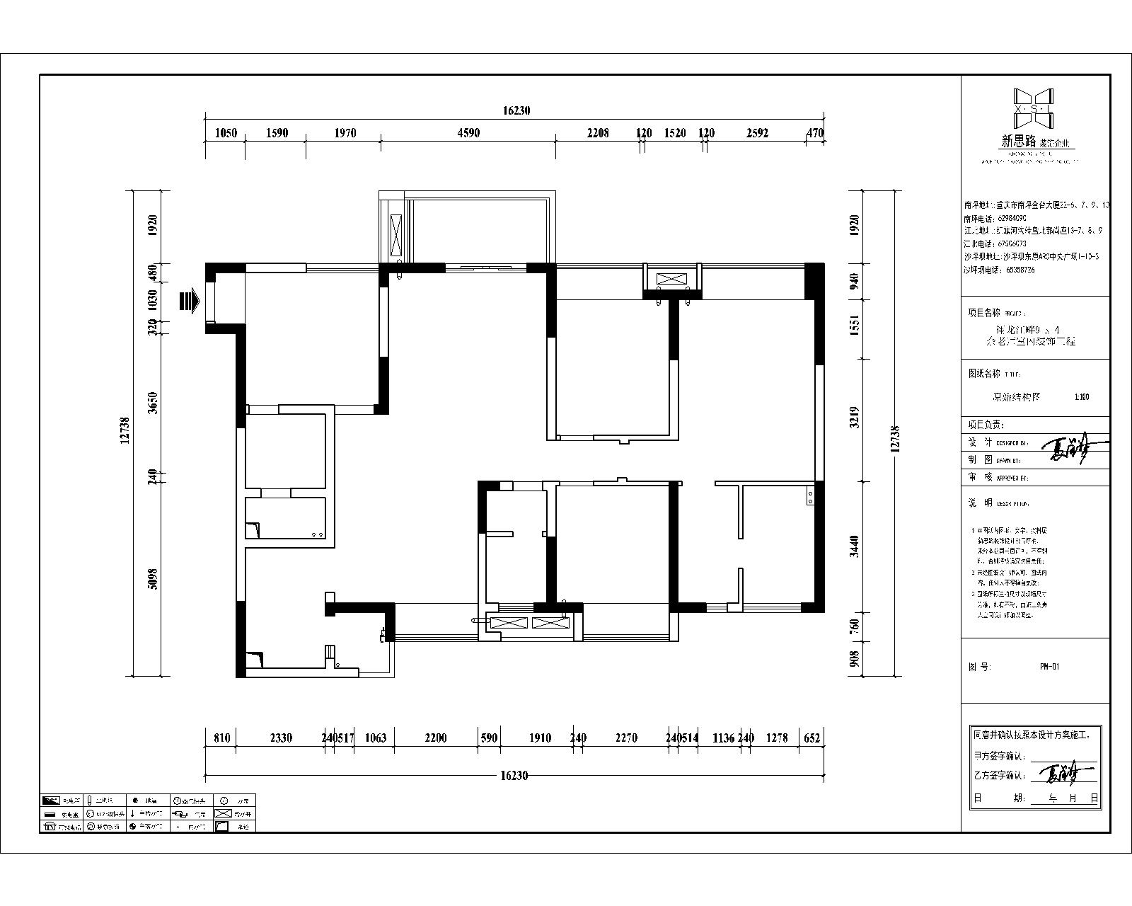
原始结构图
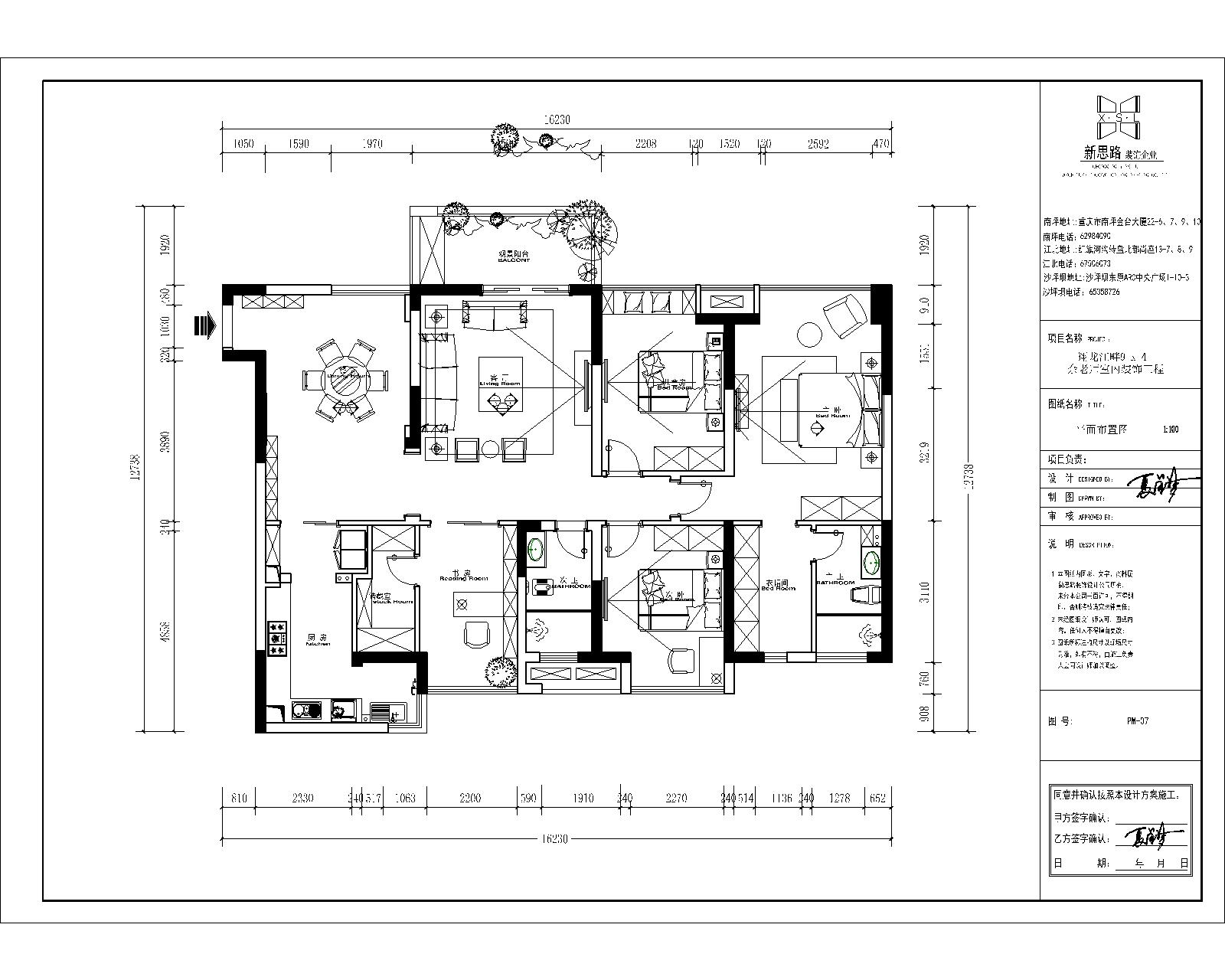
设计平面图
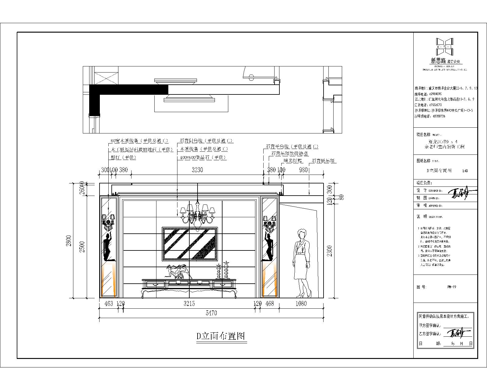
电视墙设计造型图
实景案例照




