
人间的是是非非

·项目信息·
项目地址:棕榈泉悦江国际
项目面积:180㎡
设计风格:新中式
常住人口:3-5人
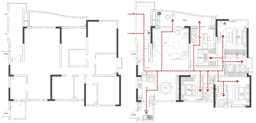
·项目详解·


·案例赏析·

·客厅·
客厅设计上采用浓厚的新中式元素,不论是墙面的山水画、还是线条勾勒如窗棂的花纹装饰,无一不透露着中式独有的诗画韵味。电视墙采用大理石花纹,灵动自然、奢华尊贵,再加以盘虬盆栽,打造出极富古典气息的空间气质。

·茶室·
独立茶室既是待客休闲之所,也能作书房之用。仿古典柜体的设计与山水式吊灯映衬,室内空间娴静雅致,恍惚已有茶香满室。

·餐厅·
餐边柜的设计,利于物品的摆放和存取。上方柜体门透明,既能做收纳之用,也能作酒柜展示之用。与整体风格相符合的圆形餐桌,再次点名新中式的主题,更表达了传统文化中对“团圆”的期待。

·厨房·
厨房操作台做L型设计,动线流畅,宽敞便捷。生活阳台与之连通,相对扩宽厨房的适用范围。家电配备齐全,烘焙、烤制都不在话下。

·卧室·
卧室整体去除复杂的设计元素,精准提炼最能表达风格的颜色,以灰绿、灰白、米色等低饱和度的色调进行搭配,打造出素雅简洁、又颇有中式风韵的休憩空间。


主卧及主卫·
主卧床头山水画再次点明新中式主题,深棕色墙面与白色墙面中和,厚重也不失飘逸。无主灯设计让室内光线更加柔和,主人在此休息睡眠体验更好。卫生间做干湿分离,便于保持清洁,淋浴室做防滑设计,小细节很重要。
·项目信息·
项目地址:棕榈泉悦江国际
项目面积:180㎡
设计风格:新中式
常住人口:3-5人
·项目详解·