山语间280m²新中式之美介绍
Introduce
仿佛一句浮生掠影的微叹 穿过堂前几许灯火阑珊 草木湖泊遥映着山河漫漫 看镜中月光满宫扇 仿佛半世风起云涌的片段 穿过殿内几许屏风御案 青芝岫石吟说着往日璀璨 如尘埃没入盛衰
设计师详情
Design details
山语间280m²新中式之美
0
楼盘地址:山语间
户型:别墅
设计风格:中式
预算:

仿佛一句浮生掠影的微叹

穿过堂前几许灯火阑珊

草木湖泊遥映着山河漫漫

看镜中月光满宫扇

仿佛半世风起云涌的片段

穿过殿内几许屏风御案

青芝岫石吟说着往日璀璨

如尘埃没入盛衰棋盘

设计师  胡先国
从业时间  15年
设计理念  以人为本,更多的设计空间留给客户

 

擅长风格  欧式、现代美式、新古典、新中式、田园

项目地址  山语间

项目面积  280m²

设计风格  新中式

常住人口  3-4人

本案设计中,因为房屋面积大,而常住人口相对较少,所以设计师将大量空间用于客户一家人的休闲、娱乐和待客之用。超大花园赏景、休憩都是个好去处,茶室、起居室、独立书房应有尽有,既是满足客户的生活需求,也是满足客户对未来生活的向往和期待。
 



二楼是主人一家生活和休息的地方,设计师预留出起居室的位置,作为二楼的中心点,它有着促进家人们交流、拉近家人距离的作用。主卧配备双衣帽间、卫生间,为主人打造完整的配套设施,享受最为便捷的生活。独立书房的设计也是很有必要的,为主人留出办公、学习的安静空间。



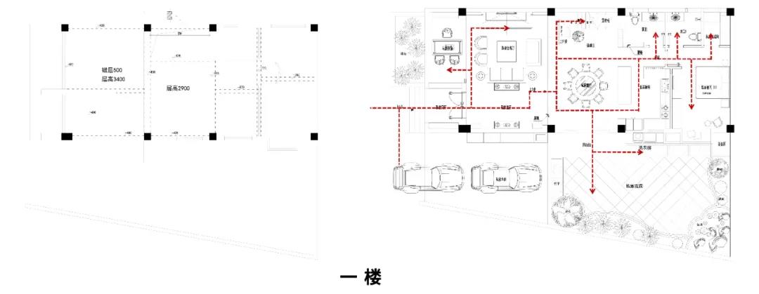
一楼的设计上,会客厅空间开阔,大气庄重,方便主人在此会客、聊天。除此之外,还设立单独的茶室,茶室外又是花园,鸟语花香,十分惬意。再将超大私家花园与餐厅连接起来,亲近自然、营造轻松的环境。




·会客厅·

·living room·

会客厅整体氛围以传统中式理念打造。厚重的大门、复古的花纹、精致的仿古摆件,无一不显示着对传统文化的热爱。沙发亦是选用类似明清传统家具的款式,更有几分古风古韵。照明上,暖白色的灯光让室内看起来干净、整洁,也符合传统审美中“窗明几净”的要求。


 

·餐厅·

·Dinner room·

餐厅紧邻落地窗,优越的采光和户外的美景让室内空间看起来显得开阔大气。大圆桌的选用,暗合中国传统文化中对团圆的向往和祝愿,更能有效拉近家人距离。开放式厨房让操作空间更大,也让做饭的过程更有互动性。
 

·起居室·

·Sitting room·

位于二楼的起居室,也是属于客户家人们的休闲空间。在这里出去便是观景阳台,可以亲近自然、互动玩耍;室内采用浓郁中式风格的装潢,以挂画、线条、家具等的方式来呈现出古色古香的韵味,打造出温馨和谐、舒适温柔的氛围。

 

·主卧·

·Master bedroom·

主卧床头巨幅山水画再次点名新中式的主题,其温柔、暖意洋洋的灯光,也是为室内再添几分和谐与温暖。整体配色采用棕、米、暖白等暖色系,与中式文化的设计相符合。除此之外,室内不再采用复杂的设计和装饰,不仅是让卧室尽量显得简洁、有助睡眠,更是将“留白”的传统审美理念暗藏其中。


·主卫·

·Main bathroom·

主卫采用双台盆的设计,方便主人进行梳洗打扮。浴缸、淋浴间、马桶均单独隔开,尽可能减少卫生间的积水情况,保持卫生间的清洁,方便打扫,也是为了健康。除此之外,卫生间的装潢均采用黄铜金属、大理石花纹,打造出奢华之感。


在线客服

关注ANBO.COM官方公众号及时订阅最新优惠资讯
ANBO.COM - 安博(中国)